物件詳細

Property details物件詳細

  • 物件
  • 物件
  • 物件

M deux(エムデュー)4階

■自由が丘駅徒歩2分、築2年

物件No 25052391
募集科目 歯科以外
物件形態 テナント
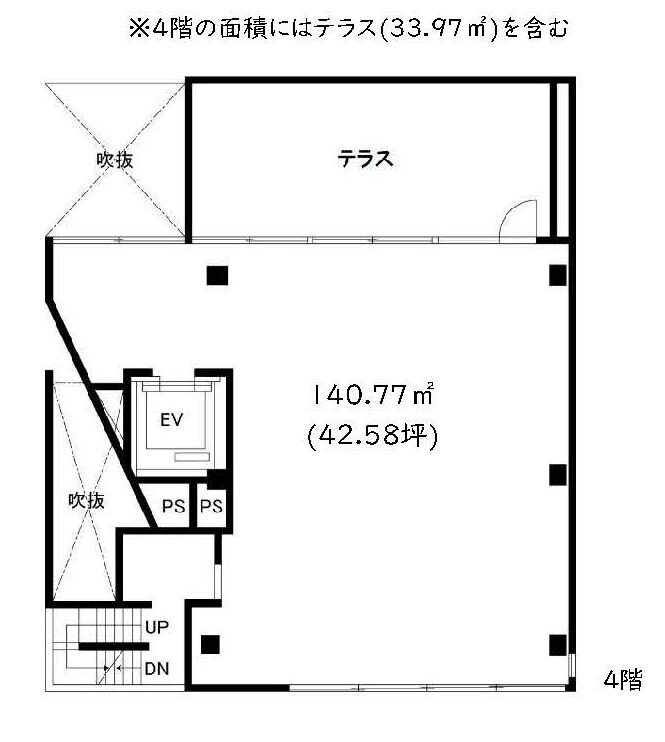
面積 4階:140.77㎡(42.58坪)
※4階の面積にはテラス (33.97 ㎡)を含む
所在地 東京都目黒区自由が丘2-11-20
テナント料 4階:1,441,440円(@33,853円/坪)
備考 東急東横線・東急大井町線「自由が丘」駅徒歩 2 分
鉄骨造、一部鉄骨鉄筋コンクリート造
地下1階付5階建

前のページへ戻る

Property inquiry
物件お問い合わせ

    物件のお問い合わせに関しては下記フォームをご利用ください。

    以下の内容でよろしければ、「送信」ボタンを押してください。

    お問合せ物件No
    お名前必須入力 医師その他
    ご住所
    電話番号必須入力
    メールアドレス必須入力
    予定標榜科目
    開業予定時期必須入力
    お問合わせ内容必須入力