クリニック・医院の承継・居抜き物件はこちら
2026年1月7日
2026年1月:新規物件情報を更新しました!
お知らせ一覧
2018年12月11日
クリニック・医院物の件掲載は無料です
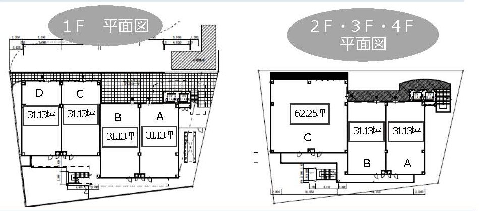
本川越駅の西口から 徒歩1分の好立地!
前のページへ戻る
物件のお問い合わせに関しては下記フォームをご利用ください。
以下の内容でよろしければ、「送信」ボタンを押してください。